644 Brown, Lexington, Davidson
644 Brown
Lexington, NC 27292
United States

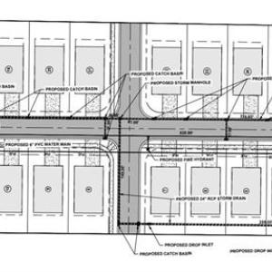
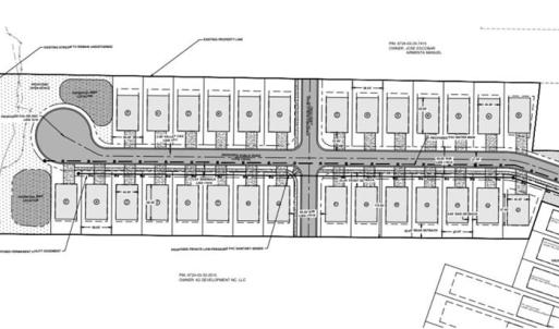
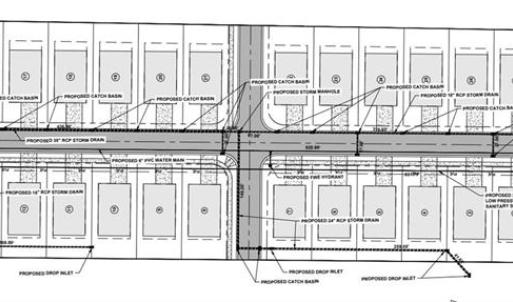
28 approved lots on Brown St, next to new construction which have sold out. Lot's have been approved and are being engineered as well. Lot sizes are approximate 120' x 56' with 40' building pad widths.
Copyright 2026 Triad MLS, Inc. All rights reserved. IDX information is provided exclusively for personal, non-commercial use, and may not be used for any purpose other than to identify prospective properties consumers may be interested in purchasing. Information is deemed reliable but not guaranteed. Properties marked with the Triad MLS, Inc. icon are provided courtesy of the Triad MLS, Inc.'s, Internet Data Exchange Database.
The listing broker's offer of compensation is made only to participants of the MLS where the listing is filed.
Sale data is for informational purposes only and is not an indication of a market analysis or appraisal.