375 Pitts School, Concord, Cabarrus
375 Pitts School
Concord, NC 28027
United States

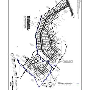
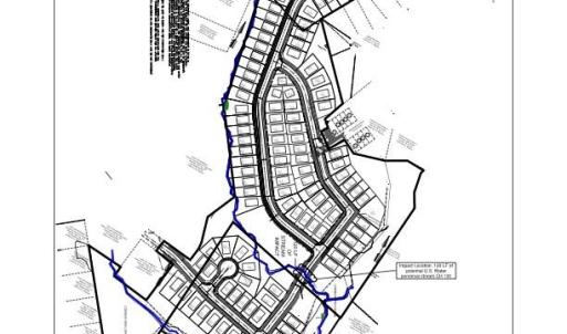
Over 36 Acres of Prime Residential Land Including Declarant / Development Rights, Existing Clubhouse, Pool and Entrance Monument (Currently Oxford Commons), Several Padded Lots to Go Ahead and Build Your Model Homes On Up Front in the Subdivision Facing the Pool Amenity. Please See Attached Previously Approved Projects to Give You an Idea of Land Use for both Single Family as well as Townhome. Excellent Location with Easy Access for Commuters. Concord Mills Mall area just Minutes Away Including Entertainment, Shopping, Dining and So Much More. Property Adjacent to Nice Newer Elementary School.
Based on information submitted to the MLS GRID as of March 24, 2026 - 7:00am. All data is obtained from various sources and may not have been verified by broker or MLS GRID. Supplied Open House Information is subject to change without notice. All information should be independently reviewed and verified for accuracy. Properties may or may not be listed by the office/agent presenting the information.